1月9日,记者针对京沪限制商住公寓发展,做了专题撰文(《“风口”变“刀口”,京沪“禁商风暴”能否刮到深圳?》)
4天后,该来的,终于来了。
这则由深圳市规划国土委在1月13日出具的《关于进一步加强商业办公研发用房建筑设计管理工作的通知(征求意见稿)》,将会对商住公寓市场产生重要影响。
读创记者仔细研读后,发现其核心内容有两条:
★两个核心内容
▲1月13日后,新的商住公寓受限
▲偷面积、违规搭建更难了
具体的解读是这样的:
第一条,可谓针对商业、办公、研发用房这三种建筑形式设置住宅,进行了全面禁止;
第二条则对第一条进行了补充。因为单套住宅是需要独立的卫生间和阳台(露台)的,这条要求“集中设置”,则进一步堵死了“变种商住公寓”的空间。
至于办公楼有单独设置卫生间的需要,也有三分之一的占比限制。
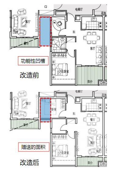
这一条关于“外墙凹槽”设置的约束,是专业性最强的。
简单说起来,就是要打击“搭板偷面积”。
先科普以下,神马是“外墙凹槽”。
建筑外墙的凹槽,有功能性和非功能性两种。
1.功能性凹槽赠送
功能性凹槽设置有大小限制,一是深度与宽度之比不大于4,二是深度不超过8m。
赠送方式主要是在户型与户型之间,或户型与核心筒之间预留凹槽,后期搭板,增大室内空间。
2.非功能性凹槽赠送
在户内房与房之间,结合房间设计非功能性凹槽,后期搭板,加大房间进深。
这条规定,主要针对的是功能性凹槽,面宽(东西墙宽度)和进深(南北墙宽度)之比大于2;否则,要按照投影计算面积。
也就是要求发挥功能性凹槽的真正功能,降低从中偷面积的可能。
这还不算,通知还从建筑面积上进行约束。
就写字楼而言,建筑面积小于等于200平方米的单套户型面积之和,不能超过半个楼层。
照此,一个楼层N个小户型的设计,将不得通过。
研发用房也不得设计单套小于250平方米的户型。
这条就很重要了,因为它规定了执行时间,也就是2017年1月13日之后报批的设计方案,才执行该通知内容。
对于已经通过审批和存量部分,不产生影响。
那么,如果该征求意见稿,被通过实施后,会对市场产生多大影响?

截至2016年底,深圳商务公寓存量约为57.66万平米,再加上其他办公物业、商业、产业用房改为公寓的合计存量约为85.57万平米。
存量结构中,120平米存量占比最大,其次为40-60平米。
今年预计将要上市的商住公寓有63个。
“工改工”则是较大的一个不确定因素。
按照第一太平戴维斯的预测,未来五年工改类城市更新项目供应建筑面积571万平方米。
其中20%为配套公寓,将会供应约115万平方米的公寓产品,每年供应23万平米公寓。
作为类住宅产品,相当于给市场每年多增加约5%住宅类产品供应量。

这个多出来的5%,主要出现在哪里?
如上图,主要集中在南山、龙岗和宝安。
记者 陆剑伟