福田深康学校规划方案有变!新建小学30个班 中学24个班
发布时间:2017-04-11来源:深圳新闻网编辑:陈琳君

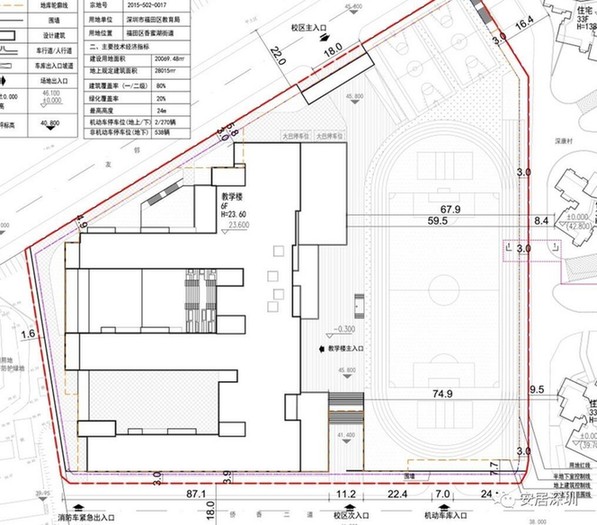
关于变更深康学校(宗地号B401-0103)规划设计条件的通告
一、调整情况
深康学校用地(宗地号B401-0103)位于福田区广深高速公路与侨城东路(规划北段)交汇处,面积20069.48平方米。
已批准新建54个班(小学30个班,中学24个班),规定建筑面积26669平方米,各边一级退线≥3米,机动车泊位数219辆。现拟将新建规定建筑面积调整为28015平方米。建筑覆盖率由50%调整为80%。
东侧建筑退红线由3米调整为零退线。各功能用房根据《深圳市普通中小学校建设标准指引》予以设置。其它规划设计条件不变。


